LOT 10 DUCHARME - $770,888.00


  Request Information    Mortgage Calculator    Get Listing Brochure    Return to Listings  

Property Specs:

Price$770,888.00
CityEssex, ON
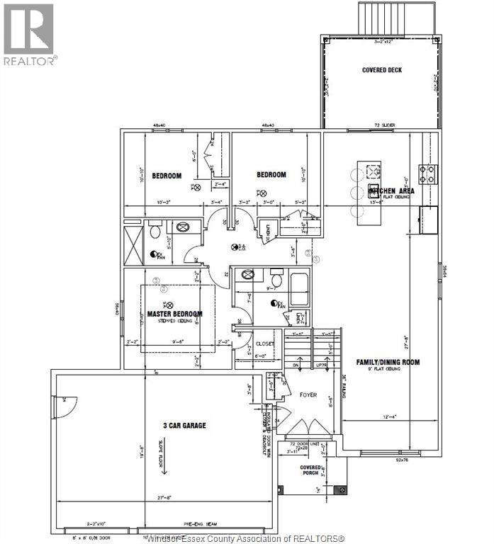
Bed / Bath3 / 2 Full
AddressLOT 10 DUCHARME
Listing ID26001620
StyleRaised ranch
ConstructionBrick, Stone
FlooringCeramic/Porcelain, Hardwood
ParkingGarage, Inside Entry
Land Size63.98 X IRREG
TypeHouse
StatusFor sale

Extended Features:

Features Double width or more driveway, Front Driveway, Gravel DrivewayOwnership FreeholdCooling Central air conditioningFoundation ConcreteHeating Forced airHeating Fuel Natural gas

Details:

Experience elevated living in this to-be-built raised ranch, where timeless craftsmanship meets refined design. Offering 3 spacious bedrooms, 2 full baths, and a highly sought-after 3-car garage, this home is thoughtfully designed for both comfort and presence. A true standout is the exposed timber framing on the front porch, creating a striking country-inspired welcome with undeniable curb appeal. Inside, the open-concept main floor features engineered hardwood flooring, expansive living and dining areas, and a sophisticated kitchen ideal for entertaining. The primary suite is a private retreat, complete with a spainspired ensuite showcasing heated floors and a statement walk-in shower. Additional highlights include a grade-level entrance, a full unfinished basement ready for customization, and a wide driveway providing ample parking. Exceptional attention to detail and quality construction make this a rare opportunity to own a truly distinctive new build. (id:4555)

LISTING OFFICE:
Pinnacle Plus Realty Ltd., John Bouffard

Comments / Live Discussion



Have a Question?


Loading...